怎么看房子朝向?
⑴以阳为向,用住宅采光最多的一方为向。⑵以动为向,若一栋楼房前只有一条街时,以街为向;若楼房四周都为街或者楼房是长方形时,以阳为向。 ⑶以形为向,若楼房是依山而建,或地形高低起落较大,以低者为向。教你一个简单的方法:记住每天早上太阳升起的方向,那边一定是东,那么以你站立的位置为中心点,早上升太阳的方向为东,剩下的就按你自己知道上北下南,左西右东的口决来分辩了

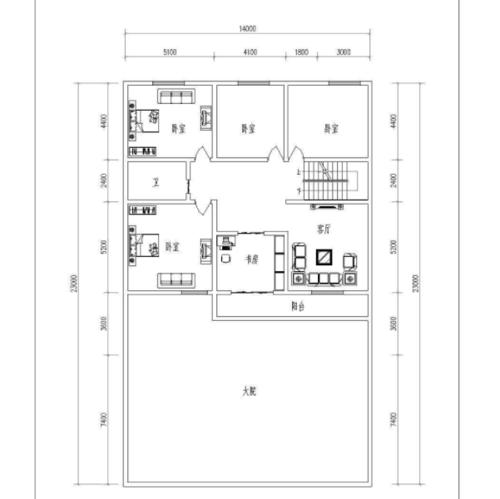
怎样看房子的朝向图解
房子开后门应该在哪个位置
后门朝西,或者你面对大门站立,你的左手边就是后门的位置

兔舍的朝向应该在什么位置?
兔舍的朝向、间距和道路等。兔舍一般应坐 北朝南,兔舍的长轴与夏季的主导风向垂直。多排兔舍平行 排列时,如果兔舍长轴与主导风向垂直,后排兔舍受到前排 兔舍的阻挡,通风效果不好。要达到理想的通风效果,可加 大兔舍的间距,一般间距为舍高的4~5倍,但这样要占用 较多的土地,经济上不合算,生产中也难以做到。如果从夏 季的主导风向和兔舍的关系考虑,使兔舍长轴与夏季的主导 风向成30°左右的夹角,可大大缩短舍间距,并可使每排兔 舍获得最佳的通风效果。
如何看房子的座向?
所谓坐向,可以从一个人坐在椅子上体会,一个人坐在椅子上时,背部所在的一方为坐度,脸面所在的一方是向。
房子的坐向需用罗盘来测量。传统民居房子的座向与门窗的朝向相反!用罗盘量,分为24山24向。朝向一般是指房屋或门窗坐落的方向,在中国一般都喜欢把房子建成坐北朝南的例如房子座向是北,那那的朝向就是南。坐南朝北的这种情况一般是受到周围环境的限制或当地的风水的原因而造成的。 比如,房子建在北坡上,房子和道路、河流、山体等的风水关系等。 一般建房的原则是坐北朝南。 当然,房子朝向也和气候、景观、总体布局等因素有关。那么我们怎么去看自己房子飞朝向?
房屋的坐向实际意义来讲,应该是面向大门时,你面对的方向是向,背后是坐,所以中国的坐北朝南的房子都是北房,房门开在房子的南墙上。而现代建筑中,房门的朝向多是东西向的,所以现在说坐向,多数是看房间的主要采光面在哪个方向,如果主要房间的采光面在南面,则说是朝南的,而你说的北房,如果是老房子,那就是坐北朝南的,如果是现在的新楼房,那就是朝北的。
房子的坐向是以房子的纵向建筑中轴线来定坐向的,一般来说,房屋后墙垂直线所在的方位就是坐,这条垂直线的另一端所在的方位就是向。 坐向包括房子的坐向和门的坐向两个方面。门与房子的坐向有相同的,也有不同的。对于与房屋坐向不同的门,应另外测量。悬赏分:0

如何确定房屋朝向?
1、现代的房屋朝向其实也是有讲究的,一般来说都是根据客厅和主卧室的窗户来判断朝向的,例如客厅的窗户朝西,主卧室的窗户朝南,那么就是西南向,其他方向也是同理。
2、大家在选择房子的时候,也可以看看周边的环境和设施,因为这些因素很可能会影响楼房的位置,例如楼房周围的道路走向不是正东正西,那么就可能影响到楼房的朝向。
3、那么看户型图时,购房者一定要根据指向标分清南北,然后以此为根据判断。
4、朝向一般是指采光面最大的地方,中国乡村小洋房一般是大门的采光面最大,城市的楼宇中,一般主阳台是每个单元的最大的采光面。
5、实地看房的时候,如果不能确定朝向,可以使用手机上的指南针,将手机对准房屋的采光面,就可以知道朝向了。
建筑朝向主要是指建筑物的正立面,或称建筑的主要立面所面对的方向。这里有两种情形,一是对于住宅建筑,主要立面是指主要房间所在的立面;二是公共建筑,正立面或主要立面则可能是指该建筑在形象上最为突出和最重要的立面,或是主要出入口所在的立面。
所谓的房屋朝向一般是指采光面最大的地方,中国乡村小洋房一般是大门的采光面最大,城市的房屋中,一般主阳台是每个单元的最大采光面。
它对建筑物的采光、通风、噪音、节能等方面都会产生一定的影响。一个好的朝向会让你冬暖夏凉,而不良的朝向不仅会影响居住的舒适度,甚至有时还会因为通风等问题危及到住户的健康。
朝向_百度百科第一、房子的位置是一个很关键的选择点,现在的高层很多楼层和居住的方位都很不标准,但是房产商却说自己的房子位置好,来欺骗消费者,其实大家需要注意的是住房朝向跟地域和地形以及风向有关,另外周边道路走向有关。
第二、居住的地方一定要有合适的阳光,同时也不能阳光一直照射,所以两者要合适才可以,而朝南面的房子可以保持充足的阳光,特别是在冬天阳光也一样能照射到同样的深处,对自己家人健康有利。
第三、朝南面的房子还有一个好处是夏季阳光直射的时候,由于是南面的房子,所以你的屋内受不到强烈日光的照射,这样家里的居住环境就会好很多,提高生活的质量。
第四、朝南的房子是最佳的房子,所以我们选择的时候应该有一个大致的方向,个人建议大家可以选择正南朝向的房子,或者是东南朝向的房子,也可以选择西南朝向的房子光照都十分合适。
第五、大家在选择房子的时候,也可以看看周边的环境和设施,因为这些因素很可能会影响楼房的位置,例如楼房周围的道路走向不是正东正西,那么就可能影响到楼房的朝向。
第六、我们还需要注意的是选择房子的时候客厅的方向很关键,个人建议大家客厅的朝向以南向为好,因为我们的客厅朝南的话,那么在冬天可以晒进有充足的太阳,而在夏天通风好,比较凉爽!
第七、我们选择房子的时候要注意以主卧室朝为主,或者是以多数卧室朝向来进行自己的选择,最佳的卧室朝向是以南向为佳,不过需要说明一点的是房子最好不要靠外墙,这点大家要注意。
扩展资料:
建筑朝向主要是指建筑物的正立面,或称建筑的主要立面所面对的方向。这里有两种情形,一是对于住宅建筑,主要立面是指主要房间所在的立面;二是公共建筑,正立面或主要立面则可能是指该建筑在形象上最为突出和最重要的立面,或是主要出入口所在的立面。
所谓的房屋朝向一般是指采光面最大的地方,中国乡村小洋房一般是大门的采光面最大,城市的房屋中,一般主阳台是每个单元的最大采光面。
它对建筑物的采光、通风、噪音、节能等方面都会产生一定的影响。一个好的朝向会让你冬暖夏凉,而不良的朝向不仅会影响居住的舒适度,甚至有时还会因为通风等问题危及到住户的健康。
朝向的影响会受到室内自然通风和朝向修正率的影响:
1、室内自然通风
自然通风是利用自然资源来改变室内环境状态的一种纯“天然”的建筑环境调节手段,合理的自然通风组织可有效调节建筑室内的气流效果、温度分布,对改变室内热环境的满意度可以起到明显的效果。
然而,由于自然通风的实现是一种依赖于建筑设计的被动式方法,因此其应用效果很大程度上依赖于建筑的朝向、平面布局等设计效果。良好的建筑设计有助于增强室内自然通风的效果,同样,建筑设计上的差异,也会给建筑通风效果产生较大的影响。
建筑朝向的选择对于室内自然通风的效果有着显著的影响,选择合适的建筑朝向,使建筑的主要开口在自然通风情况下位于合理的正、负压位置,形成有组织的有效进风口和出风口,将会使建筑室内形成良好的气流流场。
在相同条件下,对比更利于自然通风的建筑朝向与原建筑朝向的情况下,室内产生的最大气流从0.24 m/s增强到0.82 m/s,半小时后室内温度较原朝向低0.9℃,使得室内的PMV值更接近舒适。
2、朝向修正率
在中午,太阳高度角小,太阳射线穿过大气层的行程短,直射辐射照度大,朝向修正率值就大,表现在方向上就是南向朝向修正率值大;早上和傍晚太阳高度角小,行程长,直射辐射照度小,因此东、西方向朝向修正率值小。
北向的情况比较特殊,一般而言北向围护结构接受不到太阳直射辐射,影响其朝向修正率的主要因素就是散射辐射,从计算结果来看,譬如拉萨地区的负荷朝向修正率为 5.3%,由此可看出,太阳的散射辐射对采暖建筑的朝向修正率是有重要影响的。
因此在实际的采暖设计过程中,北向的朝向修正率是不能忽略为零值的,否则会影响到系统的初投资以及北向房间的热舒适等。又由于水平面在整个有日照的白天都接受到了太阳直射辐射,因此获得的太阳辐射量较大,从计算结果可以看出,无论是水平负荷朝向修正率还是节能朝向修正率,数值都较四周围护结构的朝向修正率值要大很多。
参考资料:
搜狗百科-朝向从风水学的角度说:站在房屋的中心位置(四角对角线的交点),用罗盘找出房屋大门(入户门)的位置即是朝向,而相反的方向即是座向。进而确定是东四向,还是西四向,然后看户主是东四命还是西四命,最好是东四命配东四向的房屋,西四命配西四向的房屋
现在楼房的朝向不是“大门”朝向,也不是“客厅”朝向。
楼房的朝向是:整栋楼房的朝向。
如果住宅的“大门”朝向或“客厅”朝向朝向恰巧和整栋楼房的朝向一样,才可以说“大门”朝向或“客厅”朝向是楼房的朝向。依照客厅采光来确定朝向的,如客厅朝南,那该房就是坐北朝南.这个和卧室.厨房无关.
分享或转载请注明出处:https://fengshui.teshi168.com/fengshui/121.html
本文风水知识由特视加盟发布,版权归原作者所有,不代表特视加盟立场和观点,如标记有误或侵犯利益请联系我们删除。
